Mes différents services
pour tous vos besoins dans l’immobilier
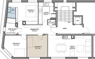
Exemple de visite virtuelle
Une visite virtuelle transforme l’expérience de vente ou d’achat en vous plongeant au cœur du bien depuis le confort de votre foyer. Elle offre une perspective à 360°, permettant d’appréhender l’espace et l’ambiance réelle, facilitant ainsi la prise de décision et économisant un temps précieux.
1305, 2025
2611, 2024
1911, 2024
1011, 2024
311, 2024
2710, 2024
2110, 2024
1410, 2024
710, 2024
3009, 2024
2209, 2024
409, 2024
409, 2024
409, 2024
3007, 2024
1507, 2024
1007, 2024
506, 2024
1705, 2024
504, 2024
2503, 2024
2003, 2024
1303, 2024
1203, 2024
403, 2024
403, 2024
2602, 2024
2302, 2024
2302, 2024
102, 2024
1202, 2025
811, 2024

































